
PRJ-03Upcoming
Stoney Creek
Ontario
ConstructionSite Management & CoordinationConstruction ManagementQuality ControlSafety ManagementDesign & Consultancy
Overview
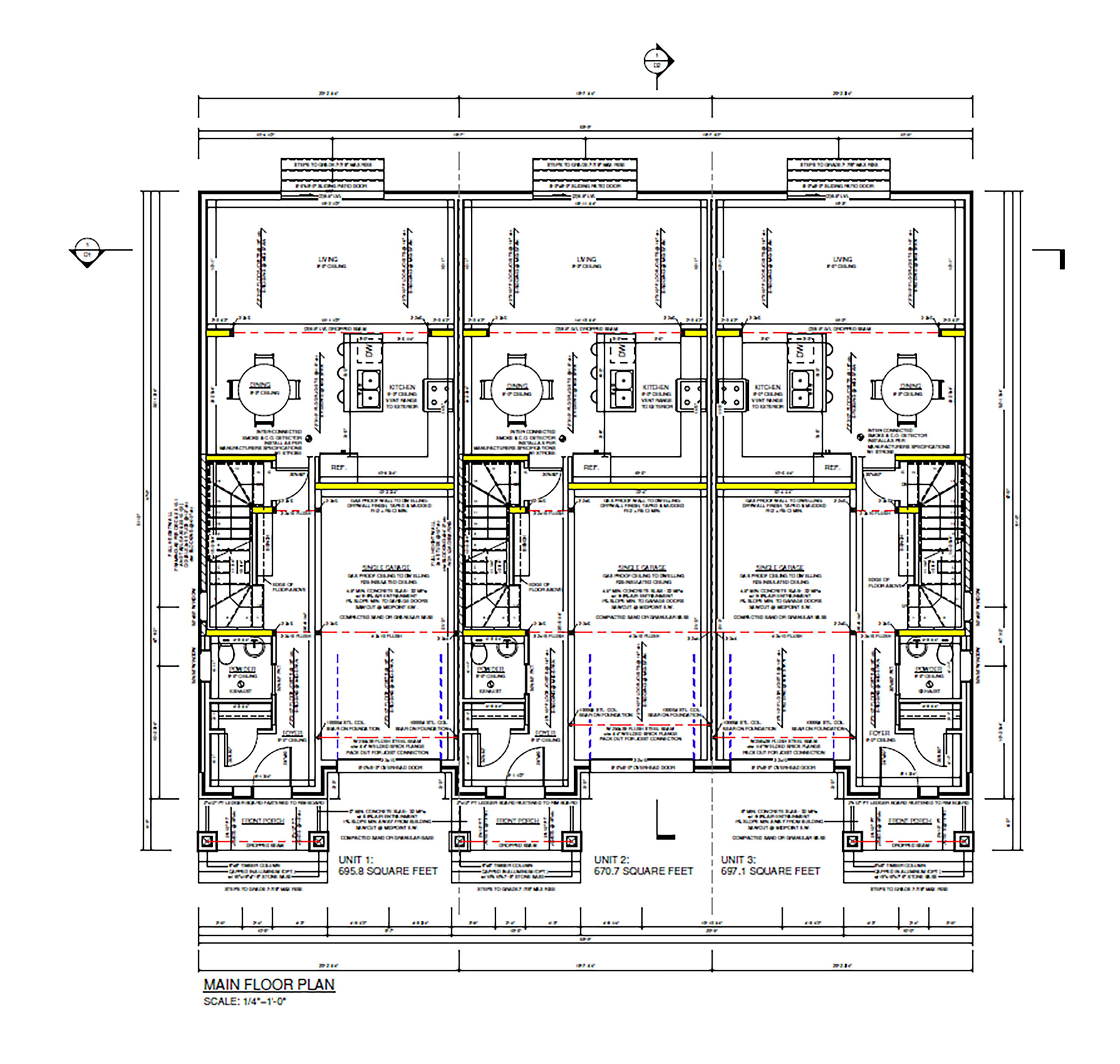
Stoney Creek Homes is a residential development of detached houses that blends modern and classical architectural elements to create a timeless living environment. The project promotes a strong sense of community living while offering residents an elegant and connected lifestyle.
Lexton is overseeing design, consultancy, and construction—ensuring exceptional craftsmanship and lasting quality throughout the development.
Gallery











