
PRJ-02Upcoming
Hillwood Homes
Hamilton, Ontario
ConstructionSite Management & CoordinationConstruction ManagementQuality ControlSafety ManagementDesign & Consultancy
Overview
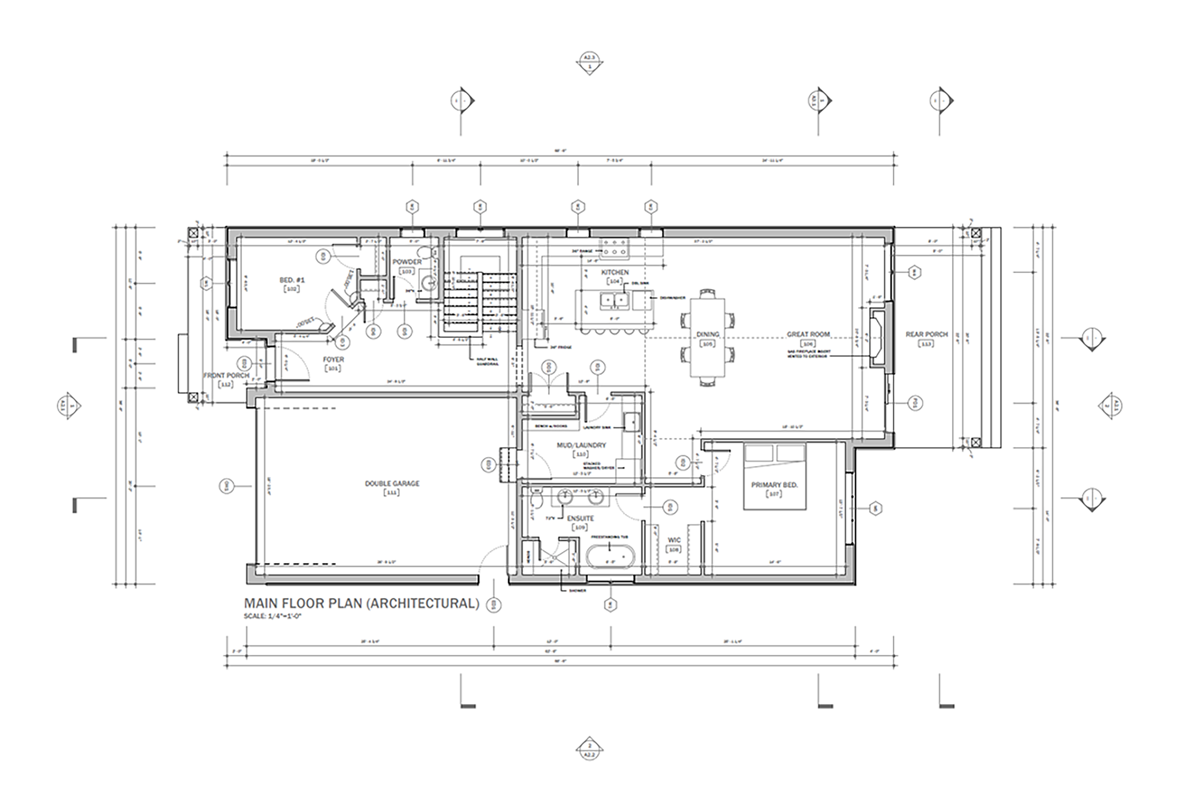
Hillwood Homes is an upcoming luxury residential community comprising semi-detached and detached houses that reflect modern architecture and refined craftsmanship. The project aims to set a new benchmark for contemporary design and high living standards within Hamilton’s growing suburban landscape.
Lexton is responsible for the complete scope of work including design, consultancy, and construction—ensuring superior build quality, precision detailing, and timely project delivery.
Gallery











